Mix Brussels --Gym & Wellness for adults only--
25 Boulevard du Souverain - 1170 Bruxelles
Hôtel 4 étoiles à Bruxelles
Informations
Situé à Bruxelles, le Mix Brussels -Gym & Wellness réservé aux adultes possède un jardin, une terrasse, un restaurant et un bar. Cet hôtel 4 étoiles propose une connexion Wi-Fi gratuite, un service d'étage et une réception ouverte 24h/24. L'établissement possède un spa et centre de bien-être avec une piscine extérieure, une piscine intérieure, une salle de sport ainsi qu'un sauna.
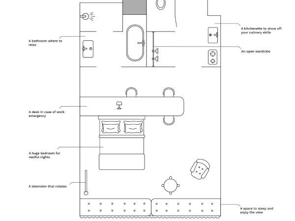
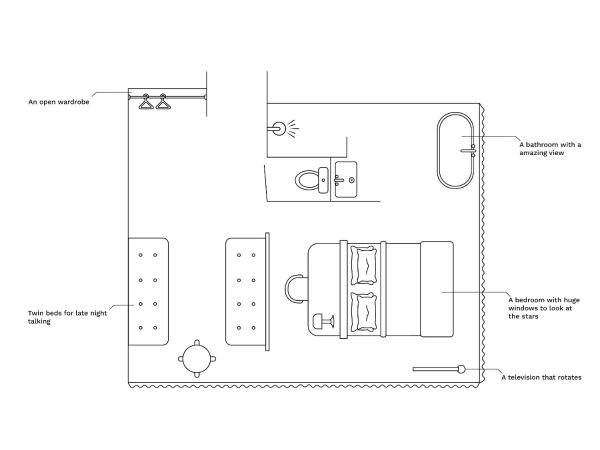
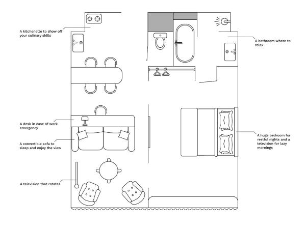
Les chambres climatisées comprennent un bureau, une bouilloire, un réfrigérateur, un coffre-fort, une télévision à écran plat et une salle de bains privative avec douche. Certaines comprennent une kitchenette avec un lave-vaisselle, un four et un micro-ondes. Le Mix Brussels -Gym & Wellness est réservé aux adultes. Le linge de lit et les serviettes sont fournis.
Un petit-déjeuner buffet ou continental est servi sur place.
L'espace bien-être du Mix Brussels -Gym & Wellness réservé aux adultes comprend un bain à remous et un hammam.
Vous séjournerez à 3,9 km du bois de la Cambre et à 6,6 km du Berlaymont. L'aéroport de Bruxelles, le plus proche, est implanté à 14 km.
Services
- Parcours de golf (à moins de 3 km)
- Visite ou cours autour de la culture locale
- Parking
- Parking sur place
- Wi-Fi disponible partout
- Internet
- Wi-Fi
- Connexion Wi-Fi gratuite
- Restaurant
- Service d'étage
- Bar
- Vin/champagne
- Café sur place
- Sauna
- Centre de remise en forme
- Spa et centre de bien-être
- Massages
- Bain à remous/jacuzzi
- Hammam
- Piscine intérieure
- Piscine extérieure
- Piscine extérieure (toute l'année)
- Piscine extérieure (de saison)
- Piscine intérieure (toute l'année)
- Piscine chauffée
- Chaises longues ou de plage
- Parasols
- Services beauté
- Manucure
- Pédicure
- Spa
- Bain à vapeur
- Coin spa/relaxation
- Forfaits spa/bien-être
- Massage du dos
- Massage du cou
- Massage des pieds
- Massage en couple
- Massage crânien
- Massage des mains
- Massage corporel
- Fitness
- Coach sportif personnel
- Vestiaires salle de sport/spa
- Piscine
- Jardin
- Terrasse
- Terrasse bien exposée
- Mobilier extérieur
- Jeux de société/puzzles
- Chambres non-fumeurs
- Équipements pour les personnes handicapées
- Chambres familiales
- Ascenseur
- Chambres insonorisées
- Chauffage
- Établissement entièrement non-fumeurs
- Climatisation
- Accessible en fauteuil roulant
- Toilettes avec barres d'appui
- Toilettes surélevées
- Lavabo bas adapté aux personnes à mobilité réduite
- Cartes d'accès
180 chambres
Informations pratiques
Toute réservation de plus de 6 chambres peut entraîner des conditions particulières et des frais supplémentaires.
Une connexion Wi-Fi est disponible dans tout l'établissement gratuitement.
Un parking public est disponible sur place
(sans possibilité de réserver) au tarif de 25 EUR par jour.
Les animaux de compagnie ne sont pas admis au sein de l'établissement.
Les enfants de tous âges sont acceptés.
Les enfants jusqu'à 3 ans (compris) séjournent gratuitement s'ils dorment dans un berceau disponible.
Les enfants jusqu'à 3 ans (compris) séjournent gratuitement s'ils dorment dans un lit existant.
Les enfants de 4 à 11 ans séjournent pour € 20 par personne et par nuit s'ils dorment dans un lit existant.
Vous n'avez ajouté aucun lit d'appoint.
Les lits d'appoint ou lits bébés sont uniquement disponibles sur demande et doivent être confirmés par l'établissement.
Les suppléments ne sont pas automatiquement calculés dans le montant total de la réservation sur le site et doivent être réglés séparément directement auprès de l'établissement.
Dernière mise à jour des informations : 2024-09-21



















































































































